LOCAL 250 M2 INCA Y ARENAL GRANDE
- $130.000
LOCAL 250 M2 INCA Y ARENAL GRANDE
- $130.000
Visión general
ID de propiedad: LQ 633
- Locales Comerciales
- 2
- 1
Descripción
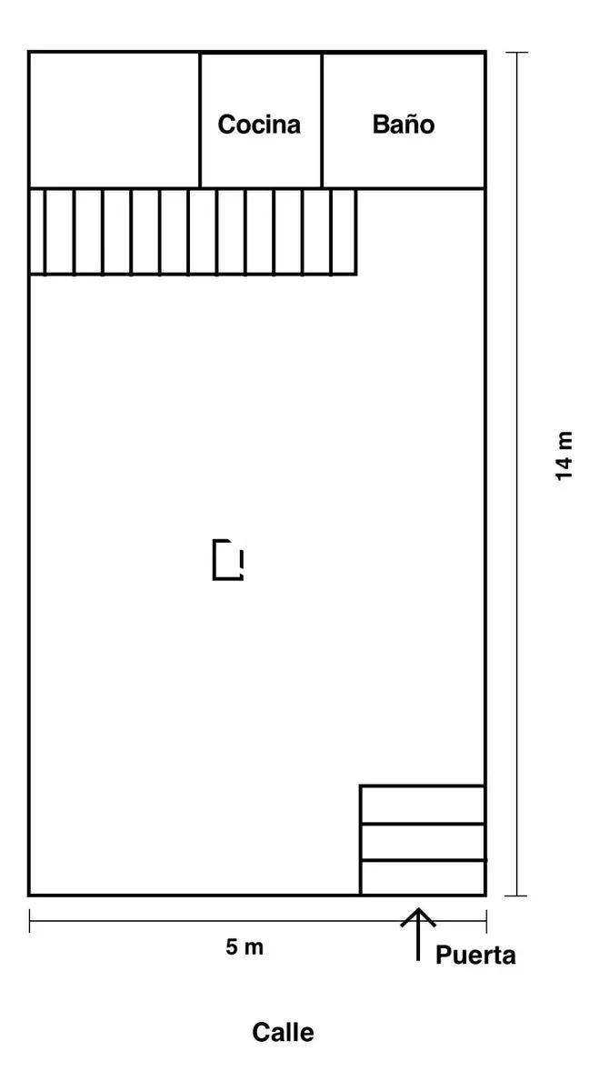
Se alquila muy buen local comercial en la zona del barrio Reus 3 esquinas Arenal Grande e Inca.
Son 250 m2 en 3 pisos, planta principal y 2 pisos más con amplios depósitos.
Baño y Kitchenette.
Se estudian garantías.
Dirección
Abrir en Google Maps-
Dirección: Arenal Grande, Reus, Villa Muñoz, Montevideo, 11800, Uruguay
-
Ciudad / Zona: Montevideo
-
Código postal: 11800
Detalles
Actualizado en marzo 18, 2026 a 12:11 pm-
ID de propiedad LQ 633
-
Precio $130.000
-
Área Edificada 250
-
Dormitorios 2
-
Baño 1
-
Tipo de propiedad Locales Comerciales
-
Estado de la propiedad Alquiler













