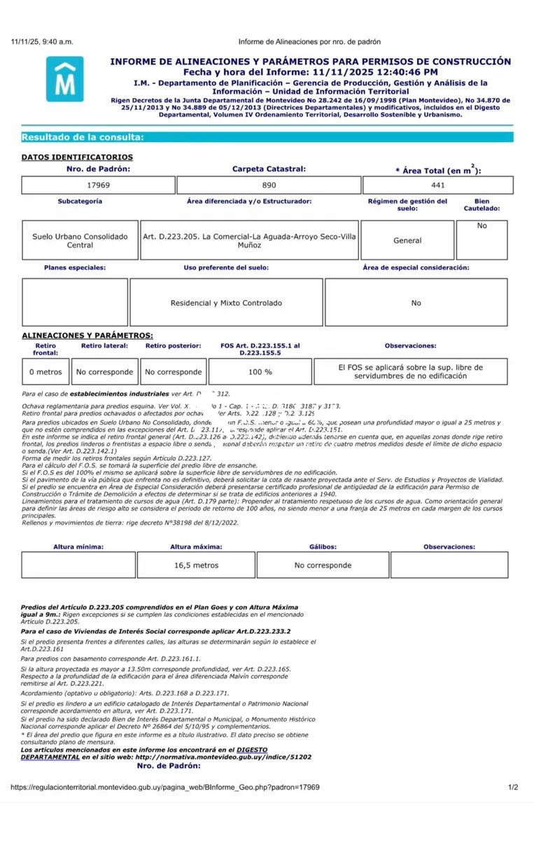
TERRENO 441 M2 PADRON UNICO ZONA LA COMERCIAL
- U$S208.000
TERRENO 441 M2 PADRON UNICO ZONA LA COMERCIAL
- U$S208.000
Visión general
ID de propiedad: TV 614
- Terrenos
- 3
- 2
- 3
Descripción
Venta Terreno en padrón único de 441 m2 en la zona de La Comercial / Villa Muñoz, sobre la calle Nicaragua.
Frente de 7.65 metros por 43 metros de fondo ampliable al fonde a 16 metros.
Con construcciones a reciclar.
Cuenta con un FOS del 100 %.
Altura máxima permitida 16.5 metros.
Ideal para realizar Local / Depósito / Galpón.
Inmejorable ubicación en zona con buen transporte sobre avenidas.
Dirección
Abrir en Google Maps-
Dirección: Nicaragua, Villa Muñoz, Montevideo, 11800, Uruguay
-
Ciudad / Zona: Montevideo
-
Departamento: Montevideo
-
Código postal: 11800
Detalles
Actualizado en noviembre 21, 2025 a 9:10 am-
ID de propiedad TV 614
-
Precio U$S208.000
-
Área Edificada 441
-
Dormitorios 3
-
Baños 2
-
Garajes 3
-
Tipo de propiedad Terrenos
-
Estado de la propiedad Venta





